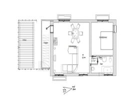
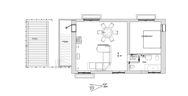
Im EG (ca. 50 qm) befindet sich das Schlafzimmer mit angrenzendem Bad sowie einer vorbereiteten Saunaecke.
Einbauküche und die „Kantina“ Esszimmer mit offenem Kamin und historischem Holzbackofen.
Übergang zum Anbau und Treppe zum OG.

Im Anbau (ca. 30 qm) findet man die Technikzentrale (Heizung, Wasserversorgung mit Notwasserreservoir und Pumpe sowie Elektroverteiler.
Hausarbeitsraum mit Waschmaschine, Dusche und WC
Abstellraum für Schränke etc.

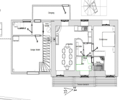
Im OG (ca. 60 qm) befindet sich das großzügiges Wohnzimmer mit großen Balkontüren und Panoramablick in die Natur.
Ein zweites Schlafzimmer mit angrenzendem Bad und WC
Eine Empore als Bücherei
Zugang zur Dachterrasse auf dem Anbau.

Das Grundstück mit 38,2 Ar liegt auf der Gemarkung
66050 Celenza sul Trigno (CH) Contrada Strette
angrenzend an Olivenhaine und einen Eichenwald
Geräteschuppen
Anschluss an einen Gebirgsbach.

Folgende

Sanierungsmaßnahmen

wurden in den letzten Jahren durchgeführt

Erdgeschoss:

Erneuerung der Bodenplatte (Tieferlegung des Erdreiches, Einbringung einer Kiesschicht, Isolierung gegen Erdreich, Erstellung eines Vorratskeller, Entwässerung in Zweikreistechnik – Toiletten und Nutzwasser separat.
Neuschaffung der Innenwände.
Vergrößerung der Fenster und Terrassentüren. (Maßanfertigung Isolierverglast vom örtlichen Schreiner)
Ausmauern mit Klinker (Fenster und Terrassentüren)
Sanierung des Kamins und Einbringung Kamineinsatz
Einbauküche
Vorbereitung einer Saunaecke.

Obergeschoss:

Demontage der Zimmertrennwände.
Einbringung von alten und bearbeiteten Eichenbalken als statischer Ersatz für Trennwände.
Einbringung von Fenster und Balkonfenster. (Maßanfertigung Isolierverglast vom örtlichen Schreiner)
Erneuerung der Fußbodenplatte zum EG in Stahlbeton (Erdbebensicherheit)
Klimaanlage

Dachgeschoss:

Sanierung der vorhandenen Balkenstruktur.
Teilweise Erneuerung der mineralischen Deckung.
Aufbringung einer 10cm dicken Isolierschicht.
Erstellung einer Hinterlüftung mit Dachlatten.
Neueindeckung mit Tondachziegeln
Dachentwässerung mit kupferfarbenen Aluminium Dachrinnen

Garage: (Anbau)

Erneuerung der Außenwände auf neuem Fundament in Poroton.
Erneuerung der Decke und Isolierung.

Alle Geschosse:

Einbringung einer Mauer in 35 cm Poroton vom EG bis Dachgeschoss auf neu erstelltem Fundament (Erhöhung der Erdbebensicherheit für das gesamte Gebäude)
Entfernen des Außen- und Innenputzes.
Herstellung von mineralisch biologischen Fugen zwischen den Natursteinen.
Einbringung einer wasserführenden Fußbodenheizung.
Neue Wasser Leitungsinstallation in zentraler Einrohrtechnik.
Elektroinstallation nach europäischen Richtlinien (Sicherungskasten, FI Fehlstromschutz etc.)
Heizung und Warmwasser über GPL Gastherme.
1000 Liter Gastank (Erdtank in sicherer Entfernung zum Haus)
Erstellung von 3 Bädern
Außenanlage mit Vordächern,Erker, Stützmauern, Natursteinmauern, Grillplatz, Müllhäuschen, Zaun mit Hecke, Holzliegeplatz und / oder Fahrrad bzw. Motorrad Unterstellplatz.
Kaminsanierung mit Nirosta Kaminrohr.
Mineralische Fliesenbeläge.

Besonderheiten:

Alarmanlage im EG Außenhautsicherung im OG Bewegungsmelder.
Videoüberwachungsanlage des Außenbereiches (4 Kameras)
Smarthome Steuerung von Licht und motorisch getriebenen Rollläden (im OG) über Smartphone
Internet Anschluss über Hyper LAN (Fa. Micso Pescara)
Sat Antenne Astra und Hotbird
Geräteschuppen
Holzkaminofen im EG und OG
10 qm Wasserreservoir im Garten

So finden sie unsere "Masseria"

Schreiben sie uns eine Nachricht.